Vendesi quadrilocale
Solido appartamento di 4 locali con buona accessibilità stradale ed esposizione a sud
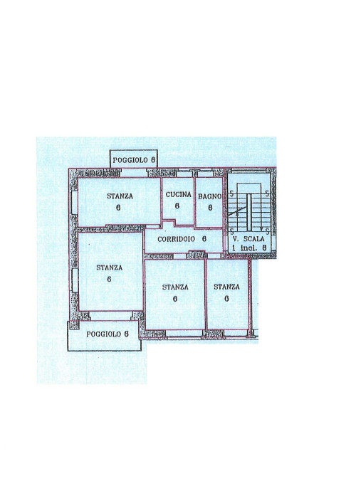
Questo appartamento di circa 104 m² si trova al terzo piano di una palazzina costruita nel 1979 e offre spazio sufficiente per famiglie, coppie o investitori. Il condominio è composto da poche unità abitative e si distingue per la sua struttura tranquilla e ordinata.
L'immobile dispone di un ampio soggiorno, tre camere da letto, un bagno, un angolo cottura e due balconi, di cui uno esposto a sud che garantisce una buona luminosità naturale. È inoltre presente una cantina di proprietà; la soffitta è utilizzabile in comune dai condomini.
Un box auto è incluso nel prezzo. Sono inoltre disponibili posti auto condominiali per i visitatori. L’edificio non è dotato di ascensore e l’appartamento si trova al terzo piano.
La zona è semplice, ma ben collegata grazie all’ottimo accesso alle strade principali, rendendola ideale per chi si sposta quotidianamente per lavoro.
Lo stato dell’immobile e dello stabile è da considerarsi mediocre. Potrebbero essere necessari interventi di ristrutturazione, che rappresentano però anche un’opportunità di personalizzazione secondo i propri gusti.
Il riscaldamento avviene tramite legna ed energia elettrica.
Il prezzo è di € 290.000,00.

