4-Zimmerwohnung zu verkaufen
Solide 4-Zimmer-Wohnung mit guter Verkehrsanbindung und Südausrichtung
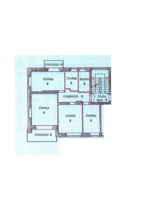
Diese Wohnung mit rund 104m² Verkaufsfläche befindet im 3. Obergeschoss eines Mehrfamilienhauses aus dem Jahr 1979 und bietet ausreichend Platz für Familien, Paare oder Anleger. Die Wohnanlage umfasst nur wenige Einheiten und besticht durch ihre ruhige und übersichtliche Struktur.
Die Immobilie verfügt über ein großzügiges Wohnzimmer, drei Schlafzimmer, ein Badezimmer, eine Kochecke sowie zwei Balkone, wobei einer davon, mit südlicher Ausrichtung, für viel Tageslicht sorgt. Zusätzlich gehört ein Kellerabteil zur Wohnung; der Dachboden steht den Eigentümern gemeinschaftlich zur Verfügung.
Ein Garagenstellplatz ist im Preis inbegriffen. Darüber hinaus stehen zusätzliche Besucherparkplätze für die Hausgemeinschaft zur Verfügung. Das Gebäude verfügt über keinen Aufzug, die Wohnung befindet sich im 3. Stock.
Die Lage ist einfach, punktet jedoch durch eine sehr gute Verkehrsanbindung – insbesondere an Schnellstraßen – und eignet sich ideal für Berufspendler.
Der Zustand der Wohnung und des Gebäudes ist als mäßig einzustufen. Renovierungsarbeiten können notwendig sein, bieten jedoch auch Potenzial zur individuellen Gestaltung. Beheizt wird die Wohnung mit Holz und Strom.
Der Kaufpreis liegt bei € 290.000,00 (VHB)

