Appartamento trilocale in vendita nel centro di Lana - potenziale per uso quadrilocale
Questo affascinante trilocale nel centro di Lana di Sopra, al secondo piano di un edificio ben conservato degli anni '50, offre un ampio potenziale per la vostra casa dei sogni. Con una superficie di vendita di ca. 116,5 m² e una superficie calpestabile di ca. 83,75 m², offre molto spazio per famiglie o coppie che hanno bisogno di più spazio. La proprietà potrebbe anche essere utilizzata come appartamento con 4 camere da letto con lavori di modifica, in quanto è anche attualmente registrata sul piano catastale, dandovi l'opportunità di creare una camera da letto aggiuntiva.
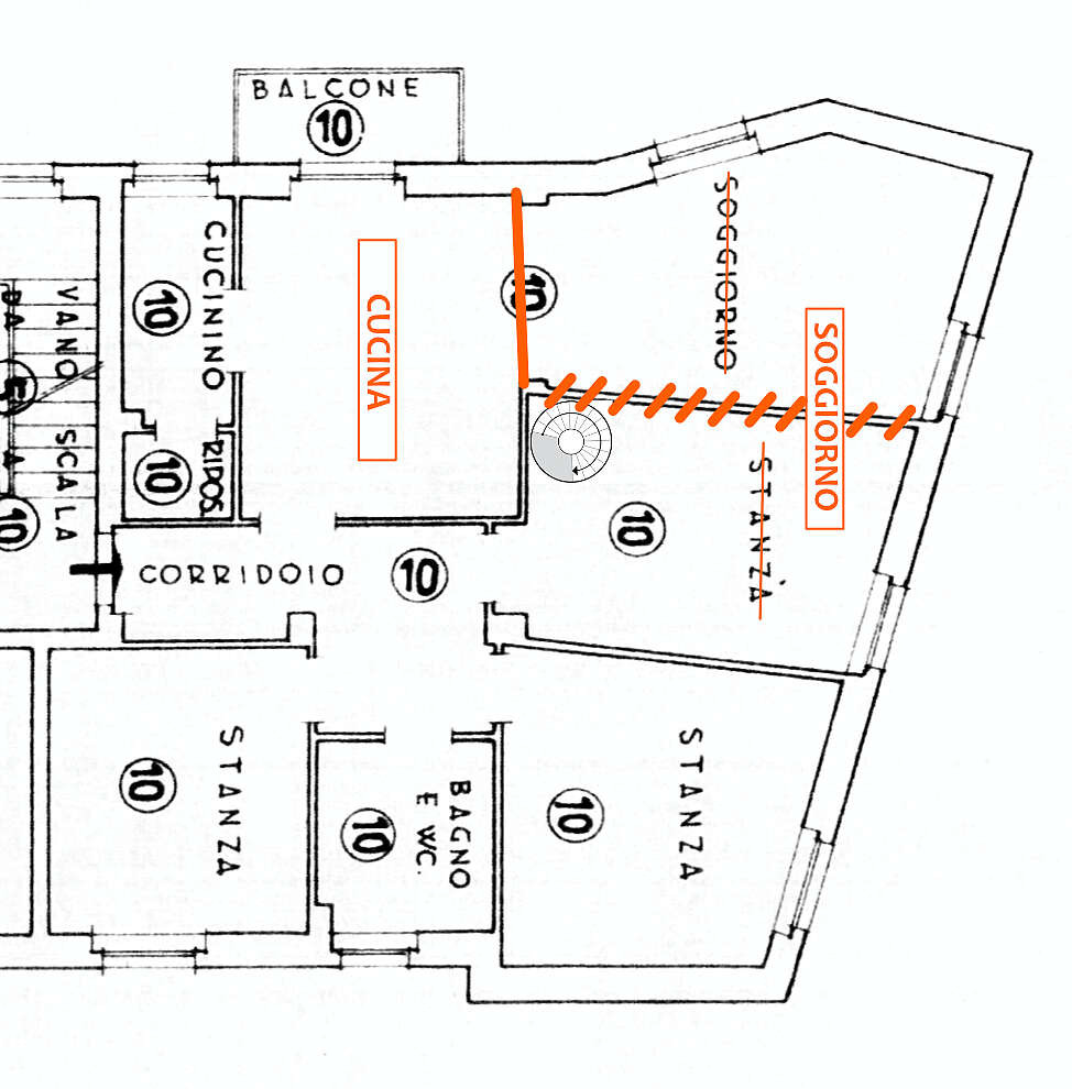
L'appartamento è composto da due camere da letto, un soggiorno molto spazioso, una cucina con zona pranzo, un bagno con WC e un cortile. La mansarda adiacente, che offre ulteriore spazio e flessibilità, è raggiungibile internamente tramite una scala a chiocciola. Dalla cucina si accede a un balcone.
Due locali cantina offrono ulteriore comfort: una cantina nuova e piastrellata di circa 11 m² e una cantina più vecchia di circa 7,8 m² offrono molto spazio. Inoltre, in un edificio adiacente all'appartamento si trova un garage singolo, ideale per un parcheggio sicuro.
La posizione centrale, nel cuore del centro di Lana, offre tutti i vantaggi della vita nel bel mezzo di un comune. Negozi, ristoranti e trasporti pubblici si trovano nelle immediate vicinanze, rendendo la vita quotidiana estremamente comoda. Nonostante la posizione centrale, l'ingresso dell'edificio è utilizzato solo da altre cinque parti, il che crea un'atmosfera di vita piacevole e tranquilla.
L'appartamento colpisce per il suo fascino e la sua funzionalità. L'anno di costruzione, risalente agli anni '50, si riflette nella sostanza ben conservata e curata. Un sistema di riscaldamento autonomo a gas garantisce un riscaldamento efficiente e confortevole degli ambienti. Sebbene l'appartamento si trovi al secondo piano senza ascensore, i molti altri vantaggi compensano questa mancanza.
Visto che non ci sono alcuni vincoli, l'immobile può essere adibito da tutte le persone anche come seconda casa.
Questo appartamento combina fascino e funzionalità e vi offre l'opportunità di progettarlo secondo le vostre idee. Scoprite di persona i vantaggi di questa proprietà e fissate una visita!

