Dreizimmerwohnung mitten im Zentrum von Oberlana zu verkaufen – Potenzial für Vierzimmernutzung
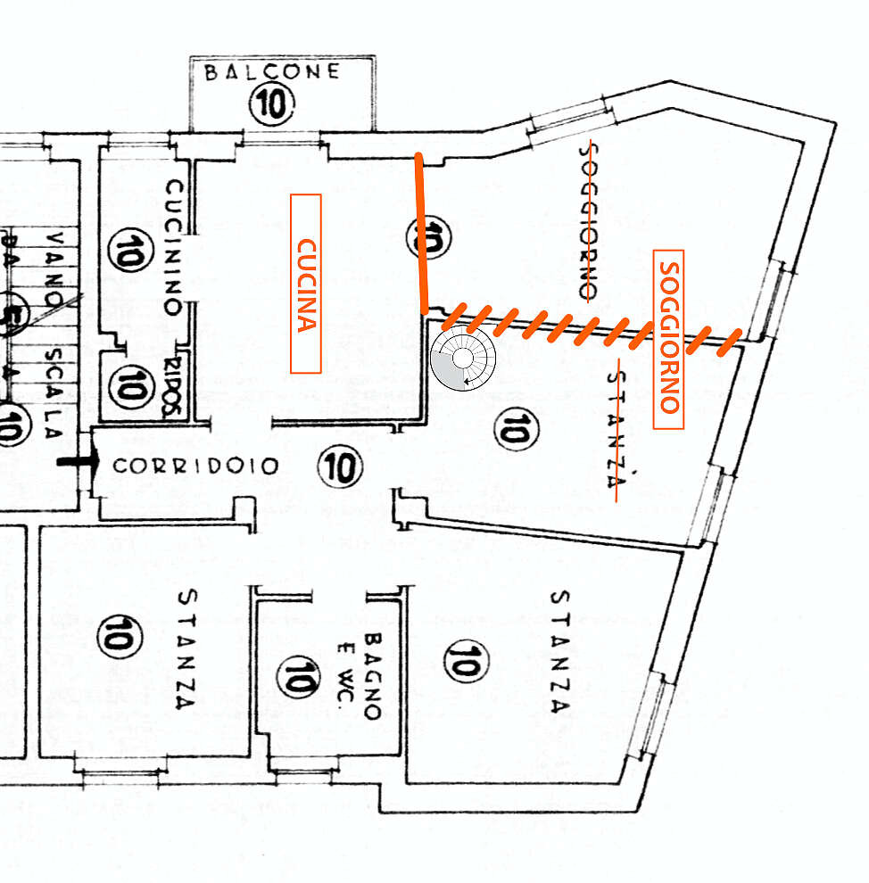
Diese charmante Dreizimmerwohnung im Zentrum von Oberlana im zweiten Stockwerk eines gut erhaltenen Gebäudes aus den 1950er Jahren bietet viel Potenzial für Ihre Wohnträume. Mit einer Verkaufsfläche von ca.116,5m² und einer Nettofläche von etwa 83,75m² bietet sie ausreichend Platz für Familien oder Paare, die zusätzlichen Raum benötigen. Die Immobilie könnte mit Änderungsarbeiten auch als 4-Zimmerwohnung genutzt werden, so wie sie außerdem momentan auf dem Katasterplan eingetragen ist, was Ihnen die Möglichkeit bietet, ein weiteres Schlafzimmer zu schaffen.
Die Wohnung besteht aus zwei Schlafzimmern, einem sehr großzügigen Wohnzimmer, einer Küche mit Essbereich, einem Badezimmer mit WC und einem Gang. Der dazugehörige Dachboden, welcher zusätzlichen Raum und Felxibilität bietet, kann intern über eine Wendeltreppe erreicht werden. Über die Küche gelangt man auf einen netten Balkon.
Zusätzlichen Komfort bieten zwei Kellerräume: Ein neuer, gefliester Keller mit ca. 11m² und ein älterer Keller mit ca. 7,8m² bieten reichlich Stauraum. Zudem gehört eine Einzelgarage in einem Gebäude gleich nebenan zur Wohnung, was ideal für sicheren Parkraum ist.
Die zentrale Lage mitten im Gemeindezentrum bietet alle Vorzüge des städtischen Lebens. Geschäfte, Restaurants und öffentliche Verkehrsmittel sind in unmittelbarer Nähe, was den Alltag äußerst bequem gestaltet. Trotz der zentralen Lage wird das Gebäude nur von fünf weiteren Parteien im selben Hauseingang genutzt, was eine angenehme und ruhige Wohnatmosphäre schafft.
Die Wohnung besticht durch ihren Charme und ihre Funktionalität. Das Baujahr aus den 1950er Jahren spiegelt sich in der gut erhaltenen und gepflegten Substanz wider. Ein autonomes Gasheizungssystem sorgt für eine effiziente und komfortable Beheizung der Räume. Zwar befindet sich die Wohnung im zweiten Stockwerk ohne Aufzug, doch die vielen weiteren Vorteile machen dies wett.
Da die Wohnung frei von jeglichen Bindungen ist, kann sie auch von allen Personen regulär bewohnt werden (auch z.B. als Zweit- bzw. Ferienwohnung).
Diese Wohnung vereint Charme und Funktionalität und bietet Ihnen die Möglichkeit, sie nach Ihren Vorstellungen zu gestalten. Überzeugen Sie sich selbst von den Vorzügen dieser Immobilie und vereinbaren Sie einen Besichtigungstermin!

