Vendesi piccolo appartamento
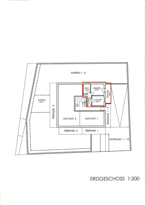
Questo appartamento al piano terra si trova in una posizione particolarmente tranquilla a Lana. L'appartamento ha una superficie di vendita di circa 48 m² e dispone di un'accogliente cucina, una camera da letto e un bagno e può essere considerato da ristrutturare. Dalla camera si accede direttamente all'area del giardino, che ha una superficie di circa 30m² e può essere utilizzata individualmente - ideale per trascorrere piacevoli momenti all'aperto. L'ampio bagno è dotato di vasca e di una finestra che garantisce una piacevole ventilazione e una sufficiente illuminazione naturale.
L'appartamento è dotato di una cantina e di un garage, perfetto per il Suo veicolo.
Questa proprietà rappresenta un'interessante opportunità di investimento.

