VENDESI AMPIO GARAGE PIÙ DEPOSITO E POSTO MACCHINA
phone
mail
close
DDr. Anton J. Unterholzner
T +39 0473 564180
buero@unterholzner.info

Il vostro messaggio

Grazie per la vostra richiesta, vi risponderemo al più presto.

VENDESI AMPIO GARAGE PIÙ DEPOSITO E POSTO MACCHINA

253,30 m²
210.000,00 €

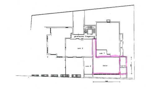
In un edificio completato nel 2008, vendiamo un ampio garage (171 m²) al piano interrato, che offre spazio per 6-7 auto, più un diposito (ca. 65 m²) e un posto macchina (17,3 m²).

Il Portone per il Garage è elettrico.

L'immobile si trova a Vilpiano, una frazione del comune di Terlano.

Dati principali

Informazioni

Immobile n.
240
Tipologia di immobile
Garage
Uso previsto
Privato
Tipo di contratto
Compravendita
Località
Vilpiano/Terlano
Paese
Italia
Prezzo
210.000,00 €

Superfici e caratteristiche

Superficie netta
253,30 m²
Ascensore
Si

Efficienza energetica

Anno di costruzione
2006
VENDESI AMPIO GARAGE PIÙ DEPOSITO E POSTO MACCHINA
I contenuti di questo sito web vengono controllati regolarmente, ma non è possibile garantire che siano corretti, completi o aggiornati. Ci riserviamo il diritto di apportare modifiche.
Richiesta esposizione

Richiesta esposizione

La preghiamo di inserire i seguenti dati per poterle inviare l'esposizione

Questo immobile ti interessa?

Impostazioni sulla privacy

Navigando in questo sito web, l'utente dichiara di aver raggiunto l'età minima richiesta di 16 anni. Desideriamo sottolineare che utilizziamo i cookie per ottimizzare la vostra esperienza web. Alcuni di essi sono necessari per la funzionalità del sito ("Essenziali"), mentre altri ci aiutano a mostrarvi pubblicità personalizzata da parte di terzi ("Marketing") o a raccogliere dati sugli utenti a fini statistici ("Tracking")

Facendo clic sui pulsanti corrispondenti, si seleziona quali tecnologie devono essere utilizzate; facendo clic su "Accetta tutto" o "Salva selezione", si dichiara di autorizzare l'uso delle tecnologie selezionate.

Ulteriori informazioni