3-ZW in guter und zentraler Lage zu verkaufen
Zum Verkauf steht eine Dreizimmerwohnung im ersten Obergeschoss eines gepflegten Mehrfamilienhauses im Zentrum von Oberlana. Das Kondominium umfasst insgesamt rund zwanzig Wohneinheiten. Trotz der zentralen Lage liegt die Wohnung ruhig und bietet eine angenehme Wohnatmosphäre.
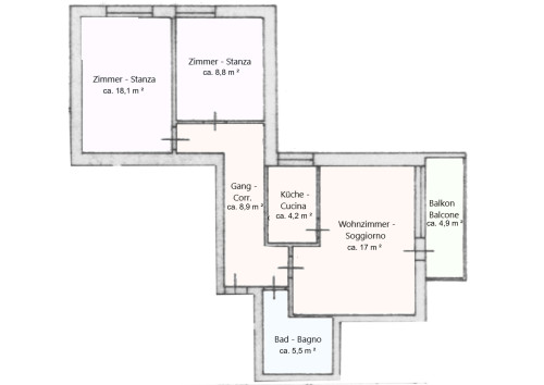
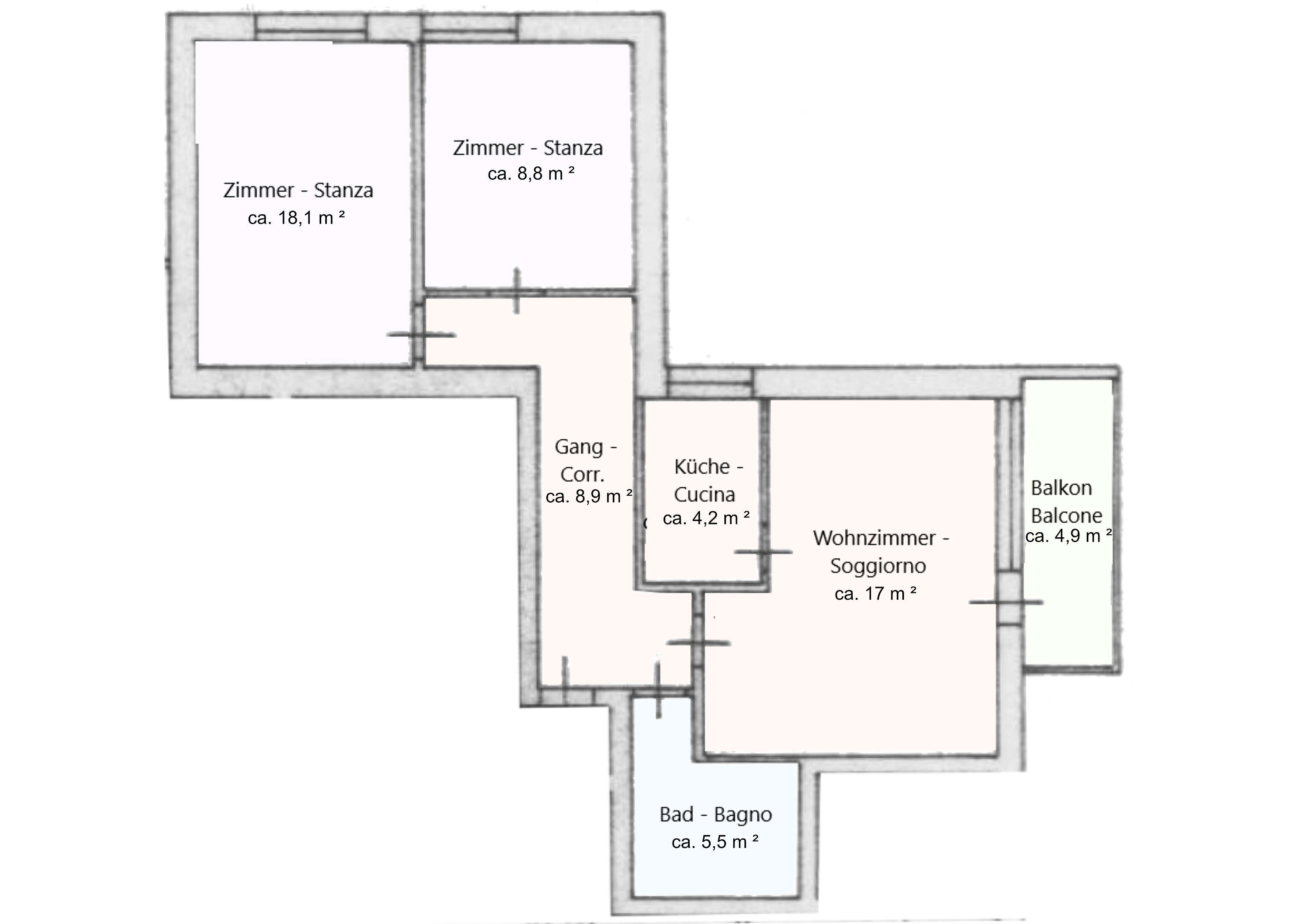
Die Wohnung ist aufgeteilt in ein geräumiges Wohnzimmer, eine kleine Küche, zwei Schlafzimmer, ein Badezimmer ohne Fenster sowie einen Balkon, der Platz zum Entspannen bietet. Küche und Bad sind sanierungsbedürftig, was künftigen Eigentümern die Möglichkeit gibt, diese nach eigenen Vorstellungen zu gestalten.
Ein Autostellplatz in der Garage sowie ein Kellerabteil sind im Preis inbegriffen. Die Beheizung erfolgt zentral über eine Gasheizung. Das Gebäude stammt aus den 1970er Jahren und befindet sich in einem gepflegten bzw. altersgemäßen Zustand.
Die Wohnung eignet sich ideal für Personen, die eine ruhige Wohnlage mit guter Anbindung schätzen und gleichzeitig das Leben mitten im Zentrum in vollen Zügen genießen möchten.
Es bestehen keine grundbücherlichen Bindungen

